Trong xu hướng nhà ở hiện nay, thiết kế nhà 1 tầng 8x15m đang là lựa chọn lý tưởng cho những gia đình mong muốn một không gian sống tiện nghi, sang trọng nhưng vẫn giữ được sự gần gũi, ấm cúng. Với kinh nghiệm hơn 10 năm trong ngành, Công Ty Cổ Phần Architec Việt mang đến cho bạn bản vẽ thiết kế nhà 1 tầng 8x15m hoàn hảo về cả công năng, thẩm mỹ và phong thủy.
Tổng quan mẫu thiết kế nhà 1 tầng 8x15m
Căn nhà được thiết kế theo phong cách hiện đại pha mái Nhật truyền thống, mang đến vẻ đẹp thanh thoát, bền vững theo thời gian. Mái Nhật với độ dốc vừa phải giúp thoát nước nhanh, chống ẩm mốc hiệu quả – phù hợp với điều kiện khí hậu Việt Nam.

Gam màu trắng – xám – nâu gỗ được phối hợp tinh tế, tạo nên nét sang trọng nhưng vẫn giữ được sự ấm áp. Hệ cửa gỗ kết hợp kính cao cấp giúp lấy sáng tự nhiên, đồng thời tăng tính thẩm mỹ cho toàn bộ ngôi nhà.
Với diện tích 8m x 15m, mẫu thiết kế này vừa đủ để bố trí đầy đủ các phòng chức năng, đảm bảo không gian sinh hoạt khoa học, tiện nghi cho gia đình 3–5 người.

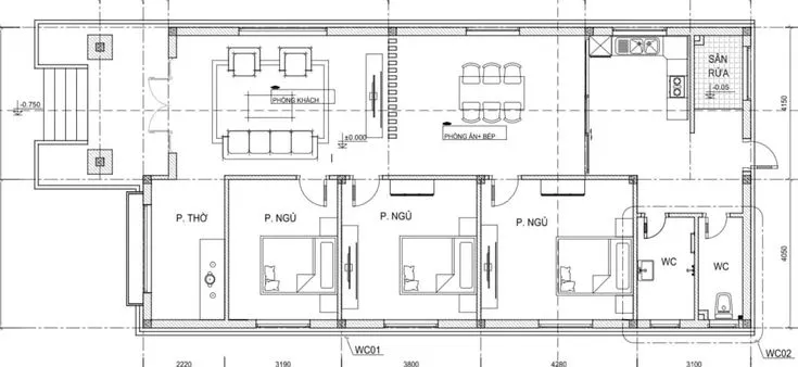
Bố trí công năng bản vẽ thiết kế nhà 1 tầng 8x15m
Công Ty Cổ Phần Architec Việt luôn chú trọng tối ưu công năng để mang lại trải nghiệm sống thoải mái và hợp phong thủy cho gia chủ.
Công năng mẫu nhà bao gồm:
- Phòng khách rộng rãi, liên thông với khu bếp và phòng ăn, tạo không gian mở thoáng mát.
- Phòng thờ được bố trí riêng biệt, đảm bảo sự trang nghiêm.
- 3 phòng ngủ thiết kế khoa học, đón ánh sáng và gió tự nhiên.
- 1 WC chung thuận tiện cho sinh hoạt hàng ngày.

Cách sắp xếp mặt bằng hợp lý giúp tối đa hóa diện tích sử dụng, đồng thời tạo cảm giác ấm cúng và gần gũi cho mọi thành viên trong gia đình.
Ưu điểm nổi bật của bản vẽ thiết kế nhà 1 tầng 8x15m
- Phong cách hiện đại – mái Nhật sang trọng, mang tính thẩm mỹ cao.
- Diện tích 8x15m linh hoạt, phù hợp với nhiều khu đất ở nông thôn và thành phố.
- Công năng đầy đủ – tiện nghi, tối ưu cho gia đình trẻ.
- Chi phí xây dựng hợp lý – chỉ khoảng 1,1 tỷ đồng (bao gồm hoàn thiện nội thất cơ bản).
- Thi công trọn gói bởi Architec Việt – đơn vị uy tín hàng đầu trong thiết kế và xây dựng nhà ở dân dụng.

Architec Việt – Đối tác đồng hành xây dựng ngôi nhà mơ ước
Với phương châm “Kiến tạo không gian sống Việt”, Công Ty Cổ Phần Architec Việt tự hào là đơn vị chuyên tư vấn, thiết kế và thi công nhà ở, biệt thự, nhà thờ họ, nhà cấp 4 trên toàn quốc.
Chúng tôi mang đến dịch vụ thiết kế trọn gói – thi công trọn gói – tư vấn phong thủy miễn phí, giúp khách hàng hiện thực hóa ngôi nhà trong mơ với chi phí tối ưu nhất.
✅ Thông tin công trình:
- Loại hình: Nhà 1 tầng mái Nhật
- Diện tích: 8m x 15m
- Công năng: Phòng khách, phòng bếp + ăn, phòng thờ, 3 phòng ngủ, 1 WC
- Chi phí dự kiến: 1,1 tỷ đồng
- Đơn vị thiết kế & thi công: Công Ty Cổ Phần Architec Việt
- Hotline tư vấn: 0973 819 829